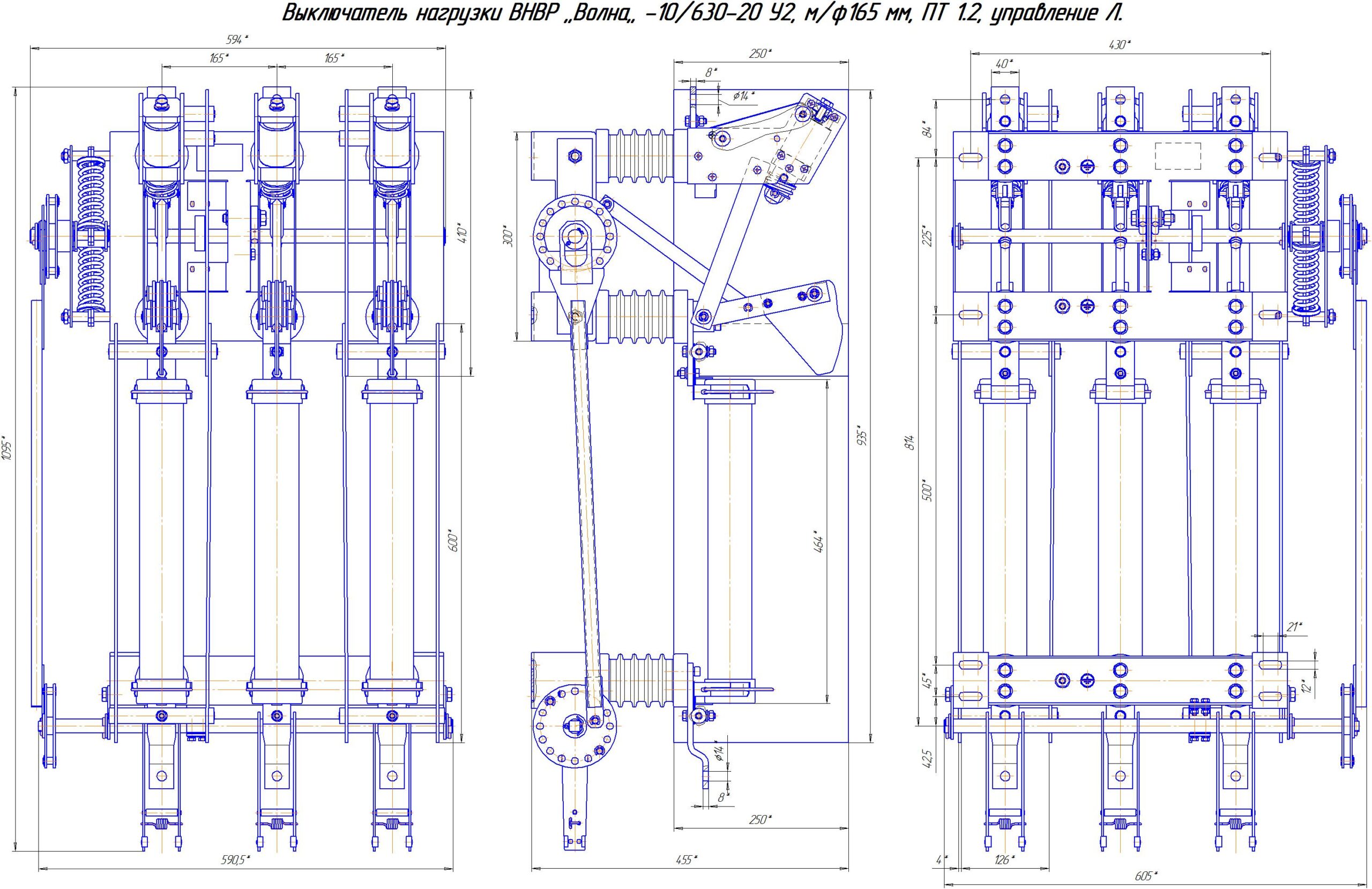
При выборе оборудования для распределительного пункта или энергоустановки важно учитывать рабочее напряжение, условия эксплуатации и требования нормативных документов. Этим параметрам в полной мере соответствует выключатель нагрузки ВНВР «Волна»-10/630-20 У2: он рассчитан на напряжение 10 кВ, обеспечивает быстрое отключение сетей под нагрузкой и изготовлен в соответствии с ГОСТ 17717 и ТУ 3414-003-11567922-2005. Исполнение У2 допускает установку в помещениях или под навесом при умеренном климате и отсутствии агрессивной среды, что делает данную модель практичным решением для большинства объектов и позволяет однозначно ответить на вопрос, какой выключатель нагрузки выбрать.
Выключатель используется в сетях с током 630 А и обеспечивает стабильную коммутацию рабочих токов в сетях 6–10 кВ. Дистанция между фазами в 165 мм соответствует требованиям по изоляции и позволяет монтировать его в ячейки КРУ и КСО. Выключатель нагрузки не предназначен для отключения токов короткого замыкания, однако эффективно используется для коммутации линий, трансформаторов в режиме холостого хода и распределительных цепей. Параметр ПТ 1.2 указывает на соответствие установленным нормам износостойкости. Тип управления «Л» обеспечивает ручное локальное включение и отключение с четкой фиксацией положений, что упрощает эксплуатацию и техническое обслуживание. Обратившись к нам, можно заказать ВНВР от «Аргон» на привлекательных условиях. Поставляем качественное оборудование, с гарантией и в сжатые сроки.

| Наименование параметра, единица измерения | Показатель |
|---|---|
| Технические характеристики | |
| Номинальное напряжение | 10кВ |
| Наибольшее рабочее напряжение | 12кВ |
| Межфазное расстояние (различные варианты исполнения) | 100мм |
| Наибольшее рабочее напряжение: | |
| - между фазами и с фазы на землю | 42 кВ |
| - между разомкнутыми контактами одной и той же фазы | 48 кВ |
| Испытательное напряжение грозового импульса, кВ, ампл | 75 |
| Номинальный ток, А | 630 |
| Номинальный ток отключения при cos φ=0,7, A | 630 |
| Сквозные токи короткого замыкания | |
| - среднеквадратичное значение за время протекания, кА | 20 |
| - время протекания, с | 1 |
| - наибольший пик, кА | 51 |
| Нормированные параметры тока включения | |
| - наибольший пик, кА | 51 |
| - начальное действующее значение периодической составляющей, кА | 20 |
| Коммутационный ресурс при номинальном токе 630 А, cos φ=0,7, циклы В-t п-О | 10000 |
| Механическая износостойкость, циклы В-t п-О | 10000 |
| Срок службы, лет | 30 |
| Гарантийный срок, лет | 5 |
| Габаритные размеры транспортной упаковки ВНВР | |
| Ширина | 750 мм |
| Длина | 850 мм |
| Высота | 525 мм |
| Вес | 35 кг до 40 кг (в зависимости от комплектации) |